Бесплатно по России
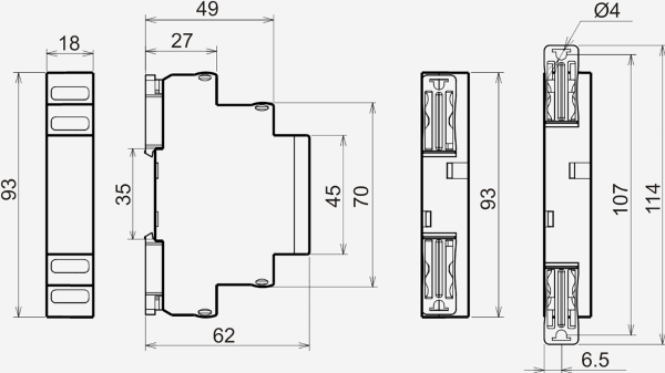
Промежуточные реле семейства МРП, производства компании МЕАНДР, предназначаются в первую очередь для гальванической развязки силовых цепей от цепей управления дистанционного включения нагрузки. Оно включает в себя несколько схожих моделей в пластиковом корпусе шириной 18 мм, с передним присоединением всех проводов, для установки на DIN-рейку шириной 35 мм или на ровную поверхность: МРП-1, МРП-2, МРП-2-1, МРП-3, МРП-3-1 и МРП-4.
Конструкция клемм реле МРП обеспечивает надежный зажим проводов сечением до 2,5 мм2. Переключение контактов осуществляется подачей управляющего напряжения на контакты питания, при этом на лицевой панели загорается желтый индикатор состояния контактной группы.
Отличительные особенности:

Технические характеристики реле семейства МРП
|
Параметр |
Ед.изм. |
МРП-1 |
МРП-2 |
МРП-2-1 |
МРП-3 |
МРП-3-1 |
МРП-4 |
|
|
Напряжение питания (по исполнениям) * |
В |
АСDC24/230, ACDC12 |
АСDC230, ACDC12, ACDC24, ACDC60 |
АСDC24/AC230, DC5 |
ACDC230, ACDC110, ACDC60, AC400, AC230 |
AC230, DC220, ACDC24, ACDC220 |
АС230, ACDC24, ACDC60, ACDC110, ACDC220, ACDC230 |
|
|
Мощность, потребляемая катушкой, не более |
Вт |
0,5 Вт / 4 ВА |
1,0 |
0,5 Вт / 4 ВА |
2,0 |
1,0 |
1,0 |
|
|
Время включения реле, не более |
мс |
25 |
||||||
|
Время выключения реле, не более |
мс |
50 |
||||||
|
Количество и тип контактов |
1 перекл. |
2 перекл. |
2 перекл. |
3 НО |
3 перекл. |
2 перекл. + 2 НО |
||
|
Номинальное/максимальное коммутируемое напряжение |
В |
250/400, АС1 |
||||||
|
Максимальный коммутируемый ток: АС250В 50Гц (АС1)/DC30В (DC1) |
А |
16 |
16 |
8 |
16 |
8 |
8 |
|
|
Максимальная коммутируемая мощность: АС250В 50Гц (АС1)/DC30В (DC1) |
ВА/Вт |
4000/480 |
4000/480 |
2000/240 |
4000/480 |
2000/240 |
2000/240 |
|
|
Электрическая прочность (питание - контакты) |
В |
АС2000 (50 Гц - 1 мин) |
||||||
|
Механическая износостойкость, не менее |
циклов |
10х106 |
||||||
|
Электрическая износостойкость, не менее |
циклов |
100000 |
||||||
|
Максимальная частота коммутаций, не более |
циклов/ч |
600 |
||||||
|
Степень защиты реле по корпусу/по клеммам по ГОСТ 14254-96 |
IP40/IP20 |
|||||||
|
Диапазон рабочих температур |
°С |
-25…+55 (УХЛ4) -40…+55 (УХЛ2) |
||||||
|
Температура хранения |
°С |
-40 … +70 |
||||||
|
Помехоустойчивость от пачек импульсов в соответствии с ГОСТ Р 51317.4.4-99 (IEC/EN 61000-4-4) |
уровень 3 (2 кВ / 5 кГц) |
|||||||
|
Помехоустойчивость от перенапряжения в соответствии с ГОСТ Р 51317.4.5-99 (IEC/EN 61000-4-5) |
уровень 3 (2 кВ А1-А2) |
|||||||
|
Климатическое исполнение и категория размещения по ГОСТ 15150-69 |
УХЛ4 или УХЛ2 (без образования конденсата) |
|||||||
|
Степень загрязнения в соответствии с |
2 |
|||||||
|
Высота над уровнем моря |
м |
до 2000 |
||||||
|
Относительная влажность воздуха |
% |
до 80 (при 25 °С) |
||||||
|
Рабочее положение в пространстве |
произвольное |
|||||||
|
Режим работы |
круглосуточный |
|||||||
|
Габаритные размеры |
мм |
18х93х62 |
||||||
|
Масса |
кг |
0,065 |
0.065 |
0,065 |
0,093 |
0.085 |
0,085 |
|
|
* Реле может быть изготовлено на специальное напряжение и частоту питающего напряжения по заказу. |
||||||||
Схема подключения реле

Габаритные размеры реле
