0
Ваша Корзина
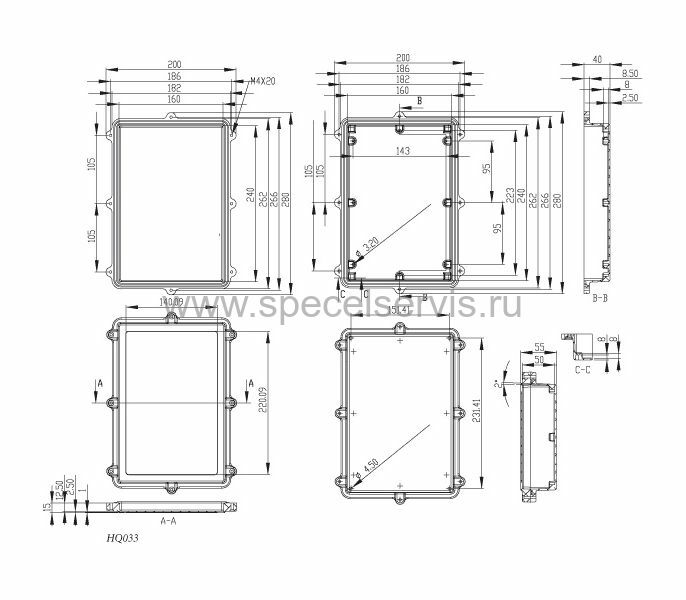
HQ033EMS – Описание
Корпус алюминиевый HQ033EMS, с защитой от помех, 262x182x55 мм
Литые алюминиевые корпуса серии HQ0xxEMS комплектуются герметизирующими прокладками обеспечивающие класс защиты от проникновения пыли и влаги IP67, а также дополнительными экранирующими прокладками для защиты от электромагнитных и радио помех.
Технические характеристики:
- Материал: сплав алюминия ADC-12
- Размеры (ДхШхВ): 262x182x55 мм
- Установка печатных плат: горизонтально на внутренней поверхности
- Степень защиты: IP 67
- Защита от электромагнитного излучения: есть
- Цвет: алюминиевый натуральный
- В комплекте 6 потайных винтов М4 из нержавеющей стали
- Совместимы с крепежными скобами серии ALMF-001
Чертеж

