0 Ваша Корзина

G118G-IP67

G118G-IP67 GAINTA - фото

Наведите на картинку для увеличения

1 518.06 Р
1 328.31 Р5+
1 185.99 Р50+
Под заказ
Оптовые цены:
Кол-во 5+ 50+
Цена 1 328.31 Р 1 185.99 Р

Минимальное кол-во: 1.

10143710
Бренд:GAINTA
Норма упаковки:1
Условия поставки:Под заказ
Срок поставки:По запросу

G118G-IP67 – Описание

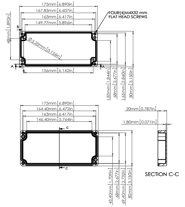
Корпус алюминиевый G118G-IP67, герметичный, 175x80x60 мм

  • Неопреновая прокладка пазовой системы изоляции обеспечивает водо- и пыленепроницаемость корпуса (стандарты IP65 и NEMA4)
  • отверстия для крепления к стене расположены вне системы изоляции
  • материал: алюминиевый сплав ADC-12 (по японской спецификации)
  • цвет: серый окрашенный
  • G118G корпус алюмин., гермет.,175 x 80 x 60, серый (рис.2)

    G118G-IP67 – Прикрепленные файлы

    G118 GAINTA (G118_GAINTA.pdf, 133 Kb) [Скачать]

    G118G-IP67 – Характеристики