BS33 – Описание
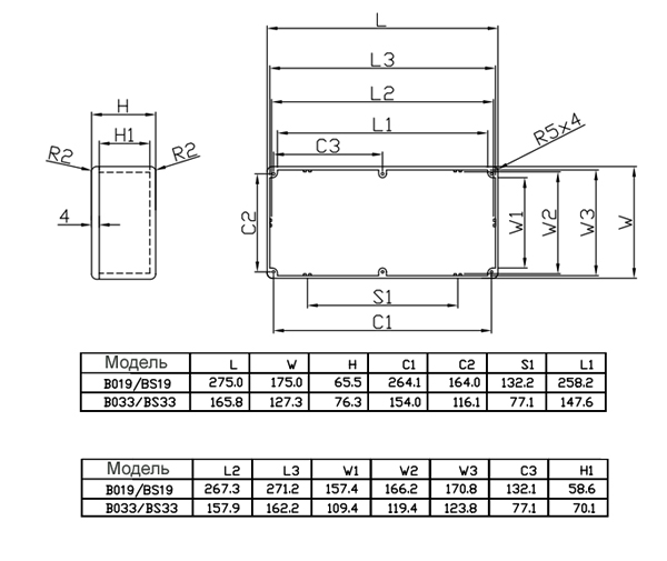
Корпус алюминиевый BS33, 165x 127 x 75
Технические характеристики:
- Материал: сплав алюминия ADC-12
- Размеры (ДхШхВ): 165 x 127 x 75 мм
- С уплотнителем, степень защиты: IP 66
- Цвет: алюминиевый натуральный
- В комплекте винты М3.5 из нержавеющей стали

Все корпуса Серии BSxx
| Модель | Размеры, мм | Цвет |
|---|---|---|
| 222x146x55 | Алюминиевый | |
| 222x146x55 | Черный | |
| 114x64x30 | Алюминиевый | |
| 114x64x30 | Черный | |
| 114x64x55 | Алюминиевый | |
| 114x64x55 | Черный | |
| 222x146x106 | Алюминиевый | |
| BS17BK | 222x146x106 | Черный |
| 275x175x65 | Алюминиевый | |
| 275x175x65 | Черный | |
| 250x250x100 | Алюминиевый | |
| 250x250x100 | Черный | |
| 120x100x35 | Алюминиевый | |
| 120x100x35 | Черный | |
| 114x89x55 | Алюминиевый | |
| 114x89x55 | Черный | |
| 171x121x55 | Алюминиевый | |
| 171x121x55 | Черный | |
| 140x100x75 | Алюминиевый | |
| 140x100x75 | Черный | |
| 80x55x25 | Алюминиевый | |
| 80x55x25 | Черный | |
| BS33 | 165x127x75 | Алюминиевый |
| 165x127x75 | Черный | |
| 60x55x30 | Алюминиевый | |
| 60x55x30 | Черный | |
| 89x35x30 | Алюминиевый | |
| 89x35x30 | Черный | |
| 171x121x106 | Алюминиевый | |
| 171x121x106 | Черный |
